



Visual Arts School Rehabilitation
With its recent rehabilitation, the Visual Arts School has preserved its legacy and expanded its ability to serve the community, offering enhanced educational outreach and a platform for modern artistic expression.
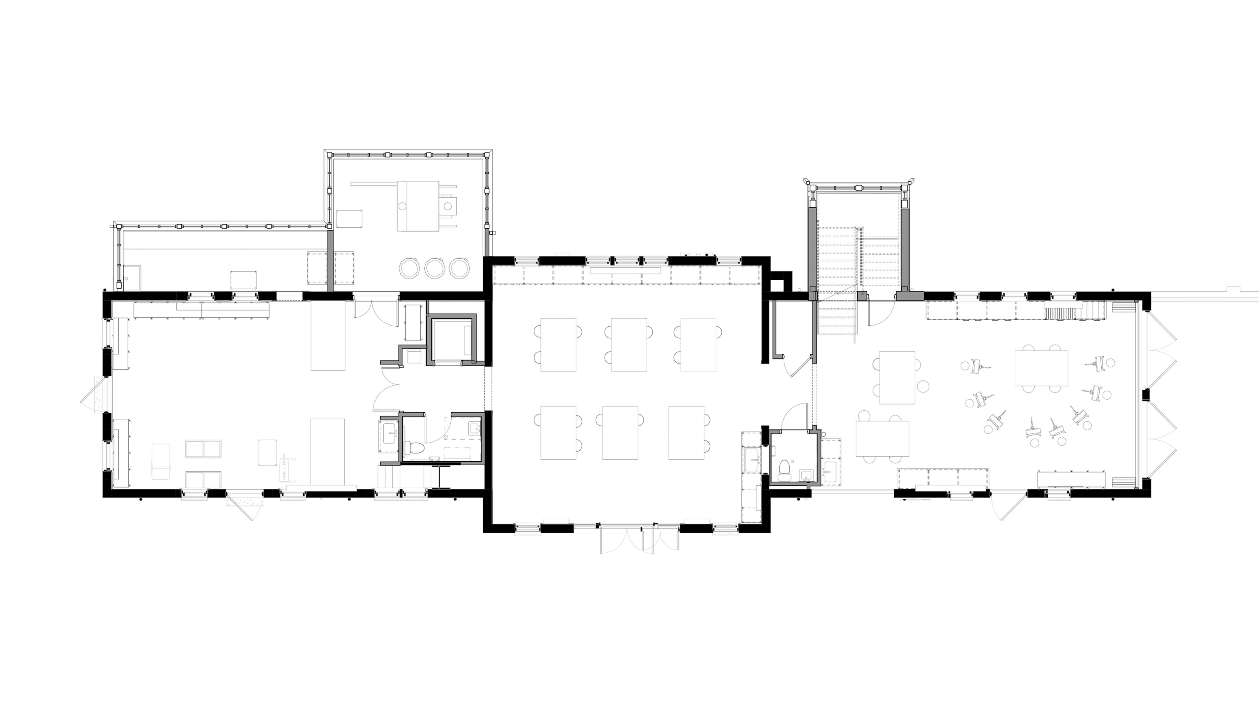
Since its establishment in the 1940s, the Hermitage Museum’s Visual Arts School (VAS) has been a cornerstone of Norfolk's arts scene. Housed in the estate's historic carriage house, the school has long provided classes in diverse disciplines, from ceramics to photography. Over time, however, piecemeal renovations left the space fragmented and underutilized. In response, the museum launched a comprehensive revitalization effort to optimize the facility for contemporary artistic needs.










The reimagined space respects its historical integrity while providing a functional and connected studio environment. With improved natural light and enhanced access to the surrounding landscape, the design fosters collaboration among the diverse art disciplines. A standout feature is the ceramics studio, now home to the region’s largest gas kiln, which allows the school to expand its programming and class offerings.




“The geometric clarity of the original spaces was carefully restored to highlight the building's inherent simplicity and symmetry. Our approach respected the historic materials, brick and timber, while introducing intentional, contemporary elements to serve the evolving needs of the arts community.”
- Greg Rutledge, Historic Preservation Architect


The renovation strikes a thoughtful balance between old and new. Additions are intentionally distinct from the original structure, preserving the historic fabric without imitation. Situated along the Lafayette River, the project also prioritizes environmental sensitivity, incorporating native plantings and rainwater management systems to protect the surrounding wetlands.




- Sector: Civic + Community
- Scope: Historic Preservation
- Norfolk, Virginia
- 2024
- 6,150 SF
- Award of Excellence for Best Renovated or Historic Rehabilitation Project, Hampton Roads Association for Commercial Real Estate (HRACRE), 2025




